Az Ön által kiválasztott lakás: A/I/7

Helyiséglista
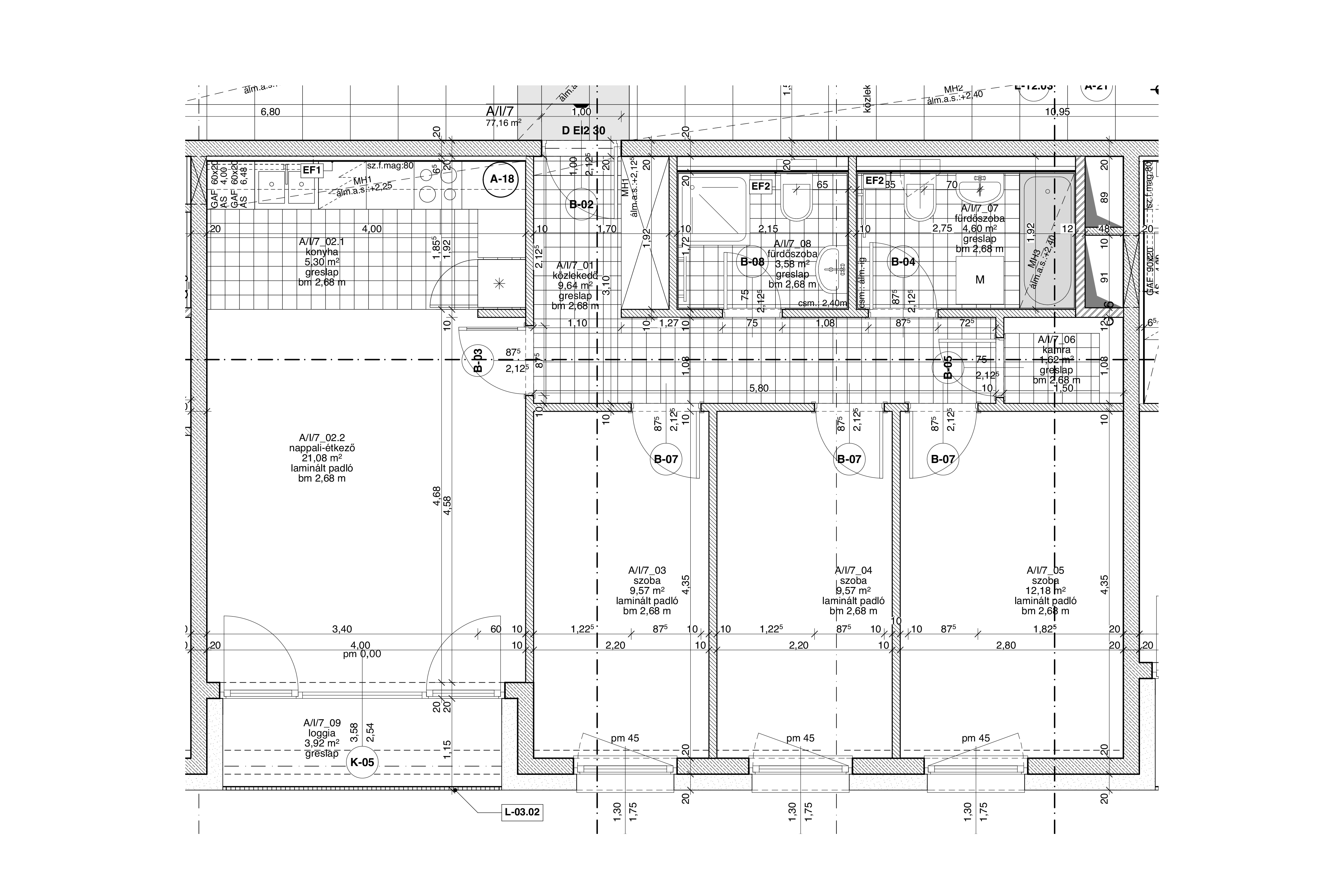
| Helyiség | Alapterület |
|---|---|
| közlekedő | 9.64 m2 |
| konyha | 5.30 m2 |
| nappali-étkező | 21.08 m2 |
| szoba | 9.57 m2 |
| szoba | 9.57 m2 |
| szoba | 12.18 m2 |
| kamra | 1.62 m2 |
| fürdőszoba | 4.60 m2 |
| fürdőszoba | 3.58 m2 |
| loggia | 3.92 m2 |
A foglalás menete
Foglalja le a kiválasztott ingatlanokat egyszerűen, mindössze néhány lépésben. Foglalását a személyes adatok megadása után 5 munkanapig tartjuk fenn, értékesítőnk várhatóan 2 munkanapon belül felveszi Önnel a kapcsolatot a foglalás megerősítéséről. Kérjük, hogy foglalást kizárólag abban az esetben indítson, ha tényleges vásárlási szándéka van a kijelölt ingatlan(ok)ra. A foglalás részleteinek megismerése érdekében kérjük tekintse meg a Felhasználói szabályzatunkat.
Az adatlapon megjelölt alaprajzi méretek vakolatlan falak közötti méretek, a kivitelezés során kismértékű méretváltozás lehetséges. Ezen dokumentációban közölt adatok a kiviteli tervek alapján kerültek megállapításra kizárólag tájékoztató jelleggel, nem minősülnek ajánlattételnek. Az alaprajzon feltüntetett bútorok tájékoztató jellegűek, azok rajzi elhelyezése nem feltétlenül tükrözi azok jövőbeni elhelyezhetőségét, illetve azok nem képzik a lakás részét.
Alaprajzok
Töltse le a kiválasztott lakása adatlapját vagy műszaki alaprajzát jpeg vagy pdf formátumban.
Marketing alaprajz letöltése (.jpg) Marketing alaprajz letöltése (.pdf) Műszaki alaprajz letöltése (.jpg) Műszaki alaprajz letöltése (.pdf)
Fizetési ütemezés
Dagály Park 1. ütem (várható átadás 2020 Q4.)
| 1. | 50% | Adásvételi elő/szerződés megkötésekor fizetendő. |
| 2. | 50% | A jogerős használatbavételi engedély megszerzésekor, a birtokbaadást megelőzően. |
Műszaki leírás
Előszerződés-tervezet
Hitel, CSOK
Ügyfeleink teljes körű kiszolgálása érdekében értékesítőink átvállalják a finanszírozással, a CSOK igényléssel, illetve az egyéb pénzügyi termékekkel kapcsolatos ügyintézést, így finanszírozási igény esetén bizalommal forduljanak értékesítő kollegáinkhoz, akiknek támogatásával egyszerűbben és soron kívül intézhetik a kapcsolódó pénzügyeiket. Ügyfeleink részére a vevői finanszírozást, a CSOK igénylést, és a kapcsolódó pénzügyi termékeket az OTP Bank és leányvállalatai biztosítják.
Felhasználói szabályzat
Jelen szabályzat az OTP Ingatlan Zrt. (továbbiakban: Beruházó, 1051 Budapest, Nádor u. 21., 01-10-041554, adatkezelési nyilvántartási szám: NAIH-82873/2015.), mint Beruházó lebonyolításában megvalósuló Dagály Park lakóingatlan fejlesztést bemutató www.dagalypark.hu weboldalon folytatott regisztráció, foglalás és ezzel kapcsolatos szolgáltatások használatával kapcsolatos feltételeket tartalmazza.
I. ÁLTALÁNOS RENDELKEZÉSEK
A Beruházó a weboldalt informatív jelleggel működteti abból a célból, hogy érdeklődő ügyfelei számára a legteljesebb tájékoztatást nyújtsa a Dagály Park projektben értékesítésre kerülő ingatlanai vonatkozásában. A weboldalon az érdeklődőknek kapcsolatfelvétel céljából lehetőségük nyílik regisztrációra, továbbá a kiválasztott ingatlanegységek lefoglalására. A weboldal használatára, különösen az ingatlanok foglalására vonatkozó részletes szabályokat jelen szabályzat tartalmazza.
II. REGISZTRÁCIÓ
Az érdeklődőnek lehetősége nyílik arra, hogy a weboldalon regisztráljon kapcsolatfelvétel, illetve ajánlatok, hírlevelek és egyéb értesítések kézhezvétele céljából nevének és e-mail címének és telefonszámának megadása mellett. Az érdeklődő adatainak kezelésére vonatkozó Adatvédelmi tájékoztató jelen szabályzat I. számú mellékletét képezi.
III. INGATLAN KIVÁLASZTÁSA ÉS FOGLALÁSA
Az érdeklődőnek lehetősége nyílik arra, hogy a weboldalon keresztül, foglalás útján, az ingatlanegységek (lakás, gépkocsibeállóhely, tároló) kiválasztását követően azokat a maga számára biztosítsa az adásvételi (elő)szerződés aláírásáig, de maximum 5 munkanapig. A foglalás eredményeként a tárgyi ingatlanegységek a továbbiakban sem a weboldalon, sem pedig Beruházó egyéb felületein, és adatbázisaiban megvásárolható szabad ingatlanként nem jelenik meg. Az ingatlan kiválasztása és foglalása a következők szerint történik.
III.1. Az ingatlan(ok) kiválasztása
A weboldalon a keresési paramétereknek leginkább megfelelő lakás kiválasztását több különböző lehetőség is biztosítja, szűrők támogatásával a szabad lakások áttekinthetők listás, emeleti és 3D nézetben egyaránt. A szűrők alkalmazásával a szabad lakások leszűkíthetők a keresési paramétereknek megfelelően, amely feltételek megadását követően valamennyi fent részletezett megjelenési nézetben egyértelműen megjelenítésre kerülnek a keresésnek megfelelő szabad lakások.
Az alkalmazott nézetekből az egyes lakások elhelyezkedése és fekvése könnyedén megismerhető. Amikor az érdeklődő kiválasztja a szabadként jelölt lakást, amely érdeklődését felkeltette, a weboldalon az adott lakás adatlapja jelenik meg.
A lakás adatlapján feltüntetésre kerül a lakás száma, a lakás elhelyezkedése a lakóházon belül (emelet), a lakás alapterülete, az egyes szobák/helyiségek és a terasz/kert alapterülete, továbbá megjelenik az lakás ún. marketing alaprajza, amelyből a szobák/helyiségek elhelyezkedése, a lakás beosztása megismerhető. A lakás adatlapja tartalmazza továbbá a lakás bruttó vételárát, illetve az adatlap útján megtekinthető a kiválasztott ingatlan várható kilátása, és virtuálisan bejárható a lakás néhány helyisége (a virtuális megtekintés módban feltüntetett méretek tájékoztató jellegűek, a kilátás funkció csak iránymutatást ad a várható kilátásról, az eltérések jogát fenntartjuk). Amennyiben az érdeklődő tovább lép a lakás lefoglalását jelző gombra, egy új felületen ismételten a lakás jellemzői jelennek meg azzal a különbséggel, hogy ezen az oldalon a lakás foglalásának folyamata megkezdhető.
III.2. Az ingatlan(ok) lefoglalása
A lakás foglalásának oldalán a lakás adatlapja mellett az érdeklődő megtalálja a műszaki alaprajzokat, az adásvételi (elő)szerződés tervezetét, a pénzügyi ütemezést, illetve a lakóházra és a benne található ingatlanegységekre vonatkozó műszaki leírást. Amennyiben az érdeklődő ezen az információs oldalon elfogadja a lakás bemutatott jellemzőit és az értékesítés feltételeit, a lakás foglalásának folyamatát – a „lefoglalás és adatok megadása”gombra történő kattintással – megkezdheti.
A./ Gépkocsibeállóhely és tároló választása
A foglalás folyamatának második és harmadik lépése, hogy az érdeklődő a kiválasztott lakás mellett a feltüntetésre kerülő teremgarázs alaprajzon gépkocsibeállót majd tárolót válasszon a maga számára. A megjelenő teremgarázs alaprajzokon (földszint és -1. szint) fehér ponttal kerülnek megjelölésre a szabadon megvásárolható gépkocsibeállóhelyek. Az egérrel a fehér pontok fölé navigálva azok bruttó árai és számai jelennek meg. Lakásonként legalább egy darab gépkocsibeállóhely vásárlása kötelező, így annak kiválasztása a foglalási folyamat folytatásának feltétele. Az alaprajzról történő választáson kívül a rendelkezésre álló legördülő menüből is lehet gépkocsibeállóhelyet választani.
A kötelezően megjelölendő gépkocsibeállóhely kiválasztása után a „tovább” gomb megnyomása után lakásonként egy tároló kiválasztására van lehetőség a gépkocsibeállóhelyhez hasonló eljárás mellett , de az érdeklődő dönthet úgy, hogy a lakáshoz nem választ tárolót. A „tovább” gomb megnyomásával tud tovább lépni az érdeklődő a következő oldalra.
Az egyes kiválasztott ingatlanegységek adatai (számuk, bruttó áruk és a vásárolt „csomag” bruttó összértéke) a jobb oldalon látható zöld dobozban a foglalás alatt végig láthatóak maradnak.
B./ Finanszírozás módjának megjelölése, általános fizetési ütemezés
A finanszírozás oldalán a Beruházó tevékenységének segítése céljából az érdeklődő már ezen az oldalon megjelölheti, hogy a vásárláshoz kíván-e bármely külső finanszírozást, banki kölcsönt, vagy állami támogatást igénybe venni, illetve amennyiben igen, akkor megjelölheti azok várható összegét. Ezen adatok csupán tájékoztató jelleggel bírnak a Beruházó számára az adásvételi (elő)szerződés teljesebb előkészítése érdekében, ezen adatokat az érdeklődő természetesen az adásvételi (elő)szerződés megkötéséig megváltoztathatja. A külső finanszírozás igénybevétele a fizetési ütemezést és így a bruttó vételárat megváltoztathatja. A „tovább” gomb megnyomásával tud tovább lépni az érdeklődő a következő oldalra.
A fizetési ütemezés oldalon részletes tájékoztatást kap az érdeklődő a megvásárolni kívánt ingatlanegységek általános fizetési ütemezéséről (az fizetési esemény bekövetkeztekor fizetendő teljes bruttó vételárrész, illetve ugyanez ingatlanegységekre bontva). A „tovább” gomb megnyomásával tud tovább lépni az érdeklődő a következő oldalra.
C./Elérhetőség (adatok megadása)
Az adatlapon az érdeklődő megjelöli a lakások, egyéb ingatlanegységek jövőbeni vevőinek /haszonélvezeti jog vevőinek vagy ezek kapcsolattartójának nevét, e-mail címét és telefonszámát.
Beruházó tájékoztatja az érdeklődőket, hogy az adatvédelmi tájékoztató jelen szabályzat I. számú mellékletét képezi, az adatkezelésre és adatvédelemre vonatkozó szabályozás a tájékoztatóban foglaltak szerint történik.
A „tovább” gomb megnyomásával tud tovább lépni az érdeklődő a következő oldalra.
D./ Adatellenőrzés
A foglalás soron következő oldalán megjelenik minden, az érdeklődő által megadott adat, amely oldal segítségével utoljára ellenőrizhető az adatok helyessége. Amennyiben az érdeklődő minden megadott adatot helyesnek talál, az adatvédelmi feltételek és a jelen foglalási feltételek elfogadása és a biztonsági kód megadása mellett a „foglalás” gomb használatával foglalását véglegesíti.
A rendszer a megadott e-mail címen visszaigazolja a foglalás megtörténtét. A visszaigazoló e-mailben a rögzített adatokat (kiválasztott ingatlanegységek száma, területe, bruttó ára(i), kapcsolattartási adatok) még egyszer megküldjük.
A foglalást követően a vevőket értékesítő kollégánk 48 órán belül felkeresi adatrögzítés és időpont egyeztetés céljából a megadott elérhetőségek valamelyikén.
SZERZŐDÉSKÖTÉSI KÖTELEZETTSÉG
Érdeklődő a foglalással kötelezettséget vállal arra, hogy a lefoglalt ingatlanegységek vonatkozásában – legkésőbb a foglalás időpontjától számított 5 munkanapon belül – adásvételi előszerződést vagy végleges adásvételi szerződést köt, a projekt készültségi fokának megfelelően. Az adásvételi (elő)szerződés megkötésének időpont egyeztetése ügyében Beruházó fogja felkeresni az érdeklődőt. Érdeklődő elfogadja és tudomásul veszi, hogy amennyiben ezen szerződéskötési kötelezettségének nem tesz eleget, úgy a 5. munkanap lejártával foglalása a rendszerből automatikusan törlésre kerül.
IV. FOGLALÁS TÖRLÉSE
Érdeklődő foglalásának törlését előzetes időpont egyeztetése mellett személyesen irodánkban, személyazonosságának igazolása mellett tudja kérni az adásvételi (elő)szerződés aláírásának időpontjáig.
V. SZERZŐI JOGOK VÉDELME
A weboldalon a Beruházó által elérhetővé tett minden tartalom (beleértve a weboldal arculatát, a feltöltött látványterveket, alaprajzokat, adatlapokat etc.) szerzői jog védelem alatt állnak. A szerzői jogok, így a felhasználási jogok jogosultja a Beruházó. A weboldal bármelyik elemének másolása, módosítása vagy újbóli közzététele – a Beruházó kifejezetten erre irányuló felhasználási engedélye nélkül – polgári jogi és büntetőjogi felelősségre vonást von maga után. A szerzői jog tárgya nem használható fel és nem hasznosítható a Beruházó előzetes írásbeli engedélye nélkül, így különösen tilos a weboldalon található tartalom egészét, bármely részét sokszorosítani, másolni, újraközölni, terjeszteni, kivéve ha erre a Beruházó egyértelmű és kifejezett hozzájárulását adta. A Beruházó a weboldal tartalmának bármely részét vagy egészét bármikor, előzetes értesítés nélkül módosíthatja vagy visszavonhatja.
I. számú melléklet: Adatvédelmi tájékoztató
1) AZ ADATKEZELŐ ÉS ELÉRHETŐSÉGEI
1.1 Az adatkezelő neve: OTP Ingatlan Zrt. (a továbbiakban: „Adatkezelő”)
Székhelye: 1026 Budapest, Riadó u. 1-3.
Levélcím: 1026 Budapest, Riadó u. 1-3.
Telefon: +36 1 373 3936
Fax: +36 1 428 0116
E-mail: ertekesites
Internet: www.otpingatlan.hu
2) AZ ÉRINTETTEK ADATAINAK KEZELÉSE
2.1 Az Érintettek köre
Az Adatkezelő új építésű lakóingatlan értékesítése, illetőleg az értékesítés előkészítése során, továbbá az értékesítési tevékenység keretében az Adatkezelővel kapcsolatba lépő ún.: érdeklődőkkel való kommunikáció során az alábbi természetes személyek (a továbbiakban: Érintett) személyes adatait kezelik:
a) vevő
b) érdeklődő
c) partner
2.2 A kezelt adatok köre
Az Adatkezelő új építésű lakóingatlan értékesítése, illetőleg az értékesítés előkészítése során, továbbá az értékesítési tevékenység keretében az Adatkezelővel kapcsolatba lépő ún.: érdeklődőkkel való kommunikáció során az alábbi adatcsoportokba tartozó adatokat kezel az Érintettekről:
a) kapcsolattartáshoz szükséges adatok (név, email cím, telefonszám)
b) szerződéskötéshez és teljesítéshez szükséges adatok (Név, Születési név, Anyja születési neve, Születési hely, Születési dátum, Állampolgársága, Személyazonosító okmány száma, Személyazonosító okmány típusa, Lakcímet igazoló hatósági igazolvány száma, Adóazonosító jel, Személyi azonosító, Telefonszám, Állandó lakcím, Levelezési cím, Email cím)
c) szerződés teljesítéséhez szükséges kapcsolattartói adatok (név, email cím, telefonszám, postai cím, faxszám)
Az érdeklődőkkel történő kapcsolatfelvétel során kezelt adatok körét az Adatkezelő honlapján, illetve az Adatkezelő által fejlesztett ingatlanok egyedi honlapjain (microsite-ok), továbbá az Adatkezelő facebook oldalán található nyomtatványok tartalmazzák. A vevőkkel történő szerződéskötéshez, illetve a megkötött szerződés teljesítéséhez szükséges adatok pontos körét az ún.: vevői adatlap, illetve a megkötésre kerülő szerződés, valamint a szerződés teljesítése során keletkezett egyéb dokumentumok tartalmazzák.
2.3 Az adatkezelés céljai
Az Adatkezelő a 2.2. pontban meghatározott adatokat a következő célokból kezeli:
a) az érdeklődőkkel való kapcsolattartás céljából (2.2.a és 2.2.b)
b) az érdeklődők és ügyfelek reklámcélú megkeresése céljából (2.2.a)
c) az Adatkezelő piackutatási igényeinek teljesítése céljából (2.2.a)
d) az értékesítés teljesíthetősége céljából (2.2.b)
e) az értékesített termékkel kapcsolatos panaszok kivizsgálása céljából (2.2.b)
f) az adó és számviteli kötelezettségek teljesítése céljából (2.2.b és 2.2.c)
g) az Adatkezelő jogszabályi kötelezettségeinek teljesítése céljából (2.2.a 2.2.b és 2.2.c)
h) az ingatlan értékesítéshez kapcsolódó szolgáltatások minőség ellenőrzése érdekében (2.2.a és 2.2.b)
i) az informatikai rendszer technikai fejlesztése érdekében (2.2.a és 2.2.b)
j) Adatkezelő jogos érdeke (2.2.a, 2.2.b és 2.2.c)
k) Szerződéses kötelezettségek teljesítése (2.2.c)
2.4 Az adatkezelés jogalapjai
Az Adatkezelő a 2.2. pontban meghatározott személyes adatokat elsődlegesen szerződés megkötésének előkészítése, illetve szerződés teljesítése jogcímén kezeli. Az ettől eltérő esetekben jelen Tájékoztató megjelöli az adott jogcím alapján kezelt adatcsoporto(ka)t.
2.4.1 Az újépítésű lakóingatlan értékesítésére irányuló szerződés megkötésének előkészítése, a szerződés teljesítése
Az Adatkezelő a vevői adatlap kitöltése során megadott személyes adatokat az ingatlan adásvételi szerződés megkötésének előkészítése, és a szerződés teljesítése céljából, beleértve a szerződésből eredő jogok, követelések érvényesítését, jogi igények előterjesztését és a kapcsolódó szavatossági/jótállási kötelezettségek teljesítését is, kezeli.
A fenti cél elérése érdekében az Adatkezelő különösen:
- a törvényi előírásoknak és a felek szándékának megfelelő adásvételi szerződés előkészítése, valamint a kapcsolódó egyéb dokumentumok összeállítása során használja az Adatkezelő az átadott adatokat. A szerződés teljesítését követően felmerülő panaszügyek (szavatosság/jótállás) kivizsgálása során a bejelentő személyének azonosítása és a bejelentés jogszerűsége tisztázása érdekében használja fel a rendelkezésre álló adatokat az Adatkezelő.
Tekintettel arra, hogy a fenti személyes adatok szolgáltatása nélkül az Adatkezelő a szerződéskötést előkészíteni, a szerződést megkötni, illetőleg teljesíteni nem tudja, az Érintett köteles a fenti célok eléréséhez szükséges személyes adatokat az Adatkezelő részére megadni. Az adatszolgáltatás elmaradása esetén az Adatkezelő jogosult az Érintettel történő szerződéskötést, illetőleg a szerződés teljesítését megtagadni.
2.4.2 Kötelező adatkezelés
Az Adatkezelő az Érintettek személyes adatait az alábbi jogszabályi kötelezettségek teljesítése céljából, az alábbi időtartamban kezeli:
| Szt. 169. § (2) bekezdés | 8 év |
| Art. 164. § (1) bek. | 5 év |
| Pmtv. 56. § (2) bek., 57. § (2)-(3) bek., 58. § (1) bek. | 8-10 év |
| Pmt. 7-10. § | 8-10 év |
2.4.3 Az Adatkezelő jogos érdeke
Az Adatkezelő az Érintettek e pontban meghatározott személyes adatait az alábbi jogos érdekek alapján kezeli:
Az Adatkezelő a 2.2.a, 2.2.b és 2.2.c pontban meghatározott adatokat, jogsértések, bűncselekmények tisztázása, felderítése, ezekkel kapcsolatos bejelentések megtétele, továbbá a Bankcsoporton belüli adatátadás biztosítása érdekében kezeli jogos érdek keretében.
2.4.4 Az Érintett hozzájárulása
A 2.2.a pont szerinti személyes adatok kezelése az Érintett hozzájárulása (önkéntes, konkrét és megfelelő tájékoztatáson alapuló és egyértelmű akaratnyilvánítása) alapján történik. A hozzájárulás megadható
a) a honlapon/microsite-on történő regisztráció során, vagy
b) a jelen Tájékoztatóhoz csatolt külön nyilatkozatban.
A 2.2.b pont szerinti személyes adatok kezelése az Érintett hozzájárulása (önkéntes, konkrét és megfelelő tájékoztatáson alapuló és egyértelmű akaratnyilvánítása) mellett, a felek közötti szerződés teljesítése, valamint az Adatkezelőre vonatkozó jogszabályi kötelezettségek teljesítése alapján történik. A hozzájárulás megadható
c) a megkötésre kerülő Szerződésben, vagy
d) a jelen Tájékoztatóhoz csatolt külön nyilatkozatban.
A 2.2.c pont szerinti személyes adatok kezelése, a felek közötti szerződés teljesítése, valamint az Adatkezelőre vonatkozó jogszabályi kötelezettségek teljesítése alapján történik.
A hozzájárulás megadása önkéntes, és az Érintett jogosult arra, hogy a hozzájárulását bármikor, korlátozás nélkül az Adatkezelőnek címzett értesítéssel visszavonja. Az értesítést az Érintett a jelen Tájékoztató 1. pontja szerinti kapcsolattartási címek bármelyikére megküldheti.
A hozzájárulás visszavonása az Érintettre nézve nem jár következményekkel. A hozzájárulás visszavonása azonban nem érinti a visszavonás előtti, – a hozzájárulás alapján végrehajtott – adatkezelés jogszerűségét.
A nem kizárólag hozzájáruláson alapuló adatkezelések esetében az Adatkezelő a további jogalapok teljesítéséig jogosult kezelni az Érintett által megadott adatokat.
2.5 Automatizált döntéshozatal, beleértve az e célból végzett profilalkotást is
Az Adatkezelő nem végez automatizált döntéshozatalt.
3) A SZEMÉLYES ADATOK CÍMZETTJEI
Az Adatkezelő az Érintettek személyes adatait – a jogszabályban, illetve az Európai Unió kötelező jogi aktusában meghatározott azon közhatalmi szervek kivételével, akik egyedi ügyben folytatott vizsgálatukhoz igényelnek személyes adatot az Adatkezelőtől – az alábbi harmadik személyek, szervezetek számára továbbítja:
Az Adatkezelő nem továbbítja az adatokat közös adatkezelőnek, vagy más önálló adatkezelőnek.
Az Adatkezelő az alábbi adatfeldolgozókat veszi igénybe:
- OTP Bank Nyrt. (2.2.b és 2.2.c szerinti adatok; számviteli feladatok);
- Conet Számítógép és Hálózatfejlesztő Kft. (2.2.b szerinti adatok; értékesítési rendszer IT üzemeltetése)
- AAM Tanácsadó Zrt. (2.2.a, 2.2.b és 2.2.c szerinti adatok, IT biztonsági feladatok ellátása)
- Gross Marketing Product Kft. (2.2.a szerinti adatok; marketing feladatok teljesítése)
- Linemedia Kft. (2.2.a szerinti adatok; marketing feladatok teljesítése)
- Lendvai és Társai Ügyvédi Társulás (2.2.b szerinti adatok, szerződés szerkesztés és kapcsolódó jogi feladatok teljesítése)
- TÖRÖS Ügyvédi Iroda (2.2.b szerinti adatok, szerződés szerkesztés és kapcsolódó jogi feladatok teljesítése)
- Balázs B. Péter Ügyvédi Iroda (2.2.b és 2.2.c szerinti adatok, peres képviselet)
- dr. Rákosfalvy Zoltán Ügyvédi Iroda (2.2.b szerinti adatok, szerződés szerkesztés és kapcsolódó jogi feladatok teljesítése)
- Deák Enikő E.V. (2.2.a és 2.2.b szerinti adatok, ingatlan értékesítési ügynöki tevékenység)
- Nagy László E.V. (2.2.a és 2.2.b szerinti adatok, ingatlan értékesítési ügynöki tevékenység)
- Sirkó Gábor E.V. (2.2.a és 2.2.b szerinti adatok, ingatlan értékesítési ügynöki tevékenység)
- Kruppai Ágnes E.V. (2.2.a és 2.2.b szerinti adatok, ingatlan értékesítési ügynöki tevékenység)
- Wéber Wohnung Kft. (2.2.a és 2.2.b szerinti adatok, ingatlan értékesítési ügynöki tevékenység)
- Optimmo Ingatlan Bt. (2.2.a és 2.2.b szerinti adatok, ingatlan értékesítési ügynöki tevékenység)
4) AZ ÜGYFELEK ÉS EGYÉB ÉRINTETTEK JOGAI
4.1 Az Érintett hozzáférési joga
Az Érintett kérelmére az Adatkezelő tájékoztatást nyújt arra vonatkozóan, hogy az Érintettnek a személyes adatait kezeli-e és amennyiben igen, úgy a kezelt személyes adatok másolatát és az alábbi információkat bocsátja az Érintett rendelkezésére:
(a) az adatkezelés célja;
(b) a kezelt személyes adatok kategóriái;
(c) azon címzettek vagy címzettek kategóriái, akikkel az Adatkezelő az Érintett személyes adatait közölte vagy közölni fogja;
(d) a személyes adatok tárolásának tervezett időtartama, vagy ha ez nem lehetséges, ezen időtartam meghatározásának szempontjai;
(e) az Érintett azon jogára vonatkozó információ, hogy kérelmezheti az Adatkezelőtől a rá vonatkozó személyes adatok helyesbítését, törlését vagy kezelésének korlátozását, és tiltakozhat az ilyen személyes adatok kezelése ellen;
(f) a Tájékoztató 4.7 pontja alapján az Adatvédelmi Hatósághoz címzett panasz benyújtásának joga;
(g) a nem az Érintett által szolgáltatott adatok tekintetében, a személyes adatok forrására vonatkozó információ;
(h) az automatizált döntéshozatal ténye (ha van ilyen), ideértve a profilalkotást is, valamint az alkalmazott logikára és arra vonatkozó érthető információ, hogy az ilyen adatkezelés milyen jelentőséggel bír, és az érintettre nézve milyen várható következményekkel jár.
Abban az esetben, amennyiben az Érintett a fenti tájékoztatást több példányban kéri, az Adatkezelő jogosult a többlet példányok elkészítésének adminisztratív költségeivel arányos és ésszerű mértékű díjat felszámítani.
Amennyiben az Érintett jelen pont szerinti hozzáférési joga hátrányosan érinti mások jogait és szabadságait, így különösen mások üzleti titkait, vagy szellemi tulajdonát, az Adatkezelő jogosult az Érintett kérelmének teljesítését szükséges és arányos mértékben megtagadni.
Az Adatkezelő az Érintettől a kérelem teljesítését megelőzően, annak tartalmának pontosítását, a kérelmezett információk illetve adatkezelési tevékenységek pontos megjelölését kérheti.
4.2 A helyesbítéshez való jog
Az Adatkezelő az Érintett kérelmére indokolatlan késedelem nélkül kijavítja vagy kiegészíti az Érintettre vonatkozó pontatlan vagy hiányos adatokat.
Az Adatkezelő az Érintett helyesbítéshez való jogának érvényesítésére irányuló kérelmének teljesítését követően haladéktalanul tájékoztatja azon személyeket, akikkel az Érintett személyes adatait közölte, feltéve, hogy az nem lehetetlen vagy nem igényel az Adatkezelőtől aránytalan erőfeszítést.
4.3 A törléshez való jog („az elfeledtetéshez való jog”)
Az Érintett az alábbi esetekben jogosult a rá vonatkozó személyes adatok indokolatlan késedelem nélküli törlését kezdeményezni:
a) a személyes adatokra már nincs szükség abból a célból, amelyből azokat az Adatkezelő gyűjtötte vagy más módon kezelte;
b) az Érintett visszavonja a Tájékoztató 2.4.4. hozzájárulását, feltéve, hogy az Adatkezelő által megvalósítandó adatkezelésnek nincs más jogalapja;
c) az Érintett a Tájékoztató 4.6. pontja alapján tiltakozik az adatkezelés ellen, és nincs elsőbbséget élvező jogszerű ok az adatkezelésre,
d) az Érintett a Tájékoztató 4.6. alapján tiltakozik az adatkezelés ellen;
e) az Érintett személyes adatait az Adatkezelő jogellenesen kezelte;
f) a magyar vagy Európai Uniós jogszabály által az Adatkezelőre előírt kötelezettség teljesítése érdekében a személyes adatokat az Adatkezelőnek törölnie kell; vagy
g) a közvetlenül gyermekeknek kínált, információs társadalommal összefüggő szolgáltatások kínálásával kapcsolatban került sor az adatgyűjtésre
Az Adatkezelő az Érintett törléshez való jogának érvényesítésére irányuló kérelmének teljesítését követően haladéktalanul tájékoztatja azon személyeket, akikkel az Érintett személyes adatait közölte, feltéve, hogy az nem lehetetlen vagy nem igényel az Adatkezelőtől aránytalan erőfeszítést.
Az Adatkezelő nem köteles a személyes adatok törlésére abban az esetben, ha az adatkezelés szükséges:
(a) a véleménynyilvánítás szabadságához és a tájékozódáshoz való jog gyakorlásához;
(b) a magyar vagy Európai Uniós jogszabály által az Adatkezelőre telepített személyes adatok kezelésére irányuló kötelezettség teljesítéséhez;
(c) közérdekből vagy az Adatkezelőre ruházott közhatalmi jogosítvány gyakorlása keretében végzett feladat végrehajtásához;
(d) a népegészségügy területét érintő közérdek megvalósításához;
(e) közérdekű archiválás céljából, tudományos és történelmi kutatási célból vagy statisztikai célból, feltéve, hogy az Érintett elfeledtetéshez való jogának gyakorlása következtében valószínűsíthetően lehetetlenné vagy komolyan veszélyeztetetté válna az adatkezelés;
(f) jogi igények előterjesztéséhez, érvényesítéséhez, illetve védelméhez.
4.4 Az adatkezelés korlátozásához való jog
Az Érintett jogosult arra, hogy kérésére az Adatkezelő korlátozza az adatkezelést, ha az alábbiak valamelyike teljesül:
a) az Érintett vitatja a személyes adatok pontosságát, ez esetben a korlátozás arra az időtartamra vonatkozik, amely lehetővé teszi, hogy az Adatkezelő ellenőrizze a személyes adatok pontosságát;
b) az adatkezelés jogellenes, és az Érintett ellenzi az adatok törlését, és ehelyett kéri azok felhasználásának korlátozását;
c) az Adatkezelőnek már nincs szüksége a személyes adatokra adatkezelés céljából, de az Érintett igényli azokat jogi igények előterjesztéséhez, érvényesítéséhez vagy védelméhez; vagy
d) az Érintett tiltakozott az adatkezelés ellen; ez esetben a korlátozás arra az időtartamra vonatkozik, amíg megállapításra nem kerül, hogy az adatkezelő jogos indokai elsőbbséget élveznek-e az érintett jogos indokával szemben.
Ha az adatkezelés a fentiek szerint korlátozás alá esik, az ilyen személyes adatokat a tárolás kivételével csak az Érintett hozzájárulásával, vagy jogi igények előterjesztéséhez, érvényesítéséhez vagy védelméhez, vagy más természetes vagy jogi személy jogainak védelme érdekében, vagy az Európai Unió, illetve valamely tagállam fontos közérdekéből lehet kezelni.
Az Adatkezelő az adatkezelés korlátozásának feloldásáról az Érintettet előzetesen tájékoztatja.
Az Adatkezelő az Érintett korlátozásához való jogának érvényesítésére irányuló kérelmének teljesítését követően haladéktalanul tájékoztatja azon személyeket, akikkel az Érintett személyes adatait közölte, feltéve, hogy az nem lehetetlen vagy nem igényel az Adatkezelőtől aránytalan erőfeszítést.
4.5 Az adathordozhatósághoz való jog
Az Érintett bármikor kérheti, hogy az Adatkezelő a Tájékoztató 2.4.1. pontja szerinti hozzájárulás alapján, vagy a 2.4.1. pontjában meghatározott szerződéses jogalapon kezelt személyes adatait tagolt, széles körben használt, géppel olvasható formátumban bocsássa rendelkezésre.
Amennyiben az egyébként technikailag megvalósítható, az Adatkezelő az Érintett kérésére a személyes adatokat közvetlenül egy másik, az Érintett kérelmében megjelölt adatkezelő részére továbbítja. A jelen pont szerinti adathordozhatósághoz való jog nem teremt kötelezettséget arra vonatkozóan, hogy az adatkezelők egymással műszakilag kompatibilis adatkezelő rendszereket vezessenek be vagy tartsanak fenn.
Abban az esetben, amennyiben az Érintett adathordozhatósághoz való joga hátrányosan érinti mások jogait és szabadságait, így különösen mások üzleti titkait, vagy szellemi tulajdonát, az Adatkezelő jogosult az Érintett kérelmének teljesítését szükséges mértékben megtagadni.
4.6 A tiltakozáshoz való jog
Az Érintettnek jogában áll a saját helyzetével kapcsolatos okokból bármikor tiltakozni a személyes adatainak kezelése ellen.
Abban az esetben, amennyiben az Adatkezelő nem tudja bizonyítani, hogy az adatkezelést olyan kényszerítő erejű jogos okok indokolják, amelyek elsőbbséget élveznek az Érintettnek a kérelmében hivatkozott érdekeivel, jogaival és szabadságaival szemben vagy amelyek jogi igények előterjesztéséhez, érvényesítéséhez vagy védelméhez kapcsolódnak, az Adatkezelő a személyes adatokat nem kezelheti tovább és azokat köteles törölni.
Abban az esetben, amennyiben az Érintett közvetlen üzletszerzés céljából folytatott adatkezelés ellen tiltakozik, ezen célból kezelt személyes adatok a továbbiakban nem kezelhetők.
4.7 Jogorvoslati jog
Ha az Érintett úgy ítéli meg, hogy a mindenkor hatályos adatvédelmi jogszabályok szerinti jogait megsértették, jogában áll a Nemzeti Adatvédelmi és Információszabadság Hatóságnál panaszt benyújtani.
A Nemzeti Adatvédelmi és Információszabadság Hatóság elérhetőségei:
Honlap: http://naih.hu;
Cím: 1125 Budapest, Szilágyi Erzsébet fasor 22/c;
Postacím: 1530 Budapest, Pf.: 5.;
Telefon: +36-1-391-1400;
Fax: +36-1-391-1410;
E-mail: ugyfelszolgalat@naih.hu
Az Érintett jogellenes adatkezelés esetén polgári pert indíthat az Adatkezelő ellen.
A per az Érintett választása szerint a lakóhelye szerinti törvényszék előtt is megindítható (a törvényszékek elérhetősége az alábbi linken található: http://birosag.hu/torvenyszekek).
4.8 4.8 Az Érintettnek továbbá jogában áll a panasznak az Érintett nevében történő benyújtásával, bíróság előtti eljárás lefolytatásával, valamint a kártérítési jogának a nevében történő érvényesítésével egy olyan nonprofit jellegű szervezetet vagy egyesületet megbízni, amelyet a magyar jognak megfelelően hoztak létre, és amelynek alapszabályban rögzített céljai a közérdek szolgálata, valamint az érintettek jogainak és szabadságának a személyes adatok vonatkozásában biztosított védelme.
4.9 Egyéb rendelkezések
Az Adatkezelő tájékoztatja az Érintettet, hogy abban az esetben, amennyiben az Adatkezelőnek a jelen Tájékoztató 4.1. - 4.6. pont szerinti kérelme előterjesztőjének kilétével kapcsolatban megalapozott kétsége támad, az Adatkezelő az Érintett személyazonosságának megerősítéséhez szükséges további információk rendelkezésre bocsátását igényelheti.
Abban az esetben, amennyiben az Adatkezelőnek bizonyítottan nem áll módjában az Érintettet azonosítani, az Adatkezelő az Érintett kérelmének teljesítését megtagadhatja.
Budapest, 2019. szeptember 17.

